Баня "Онегин"

О проекте
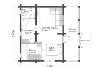
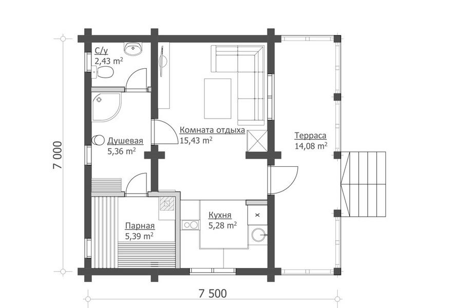
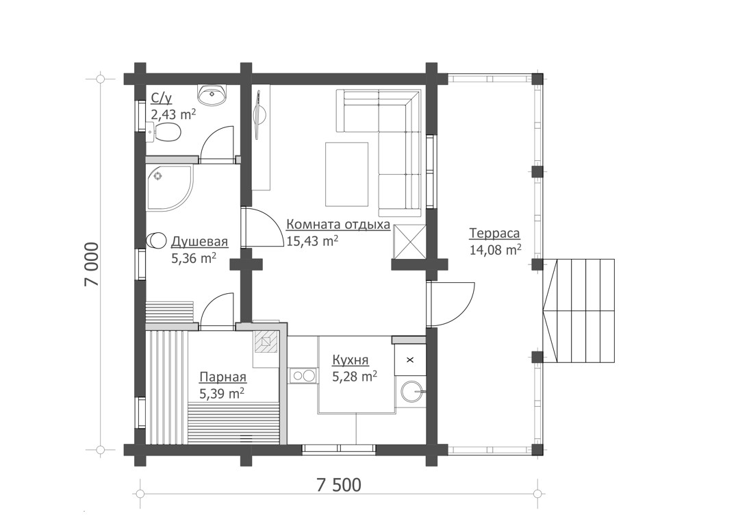
Габариты дома (м)
7х8 м
Площадь дома (м²)
48 м²
Количество этажей
1
Количество санузлов
1
Комплектации и Стоимость
Стенокомплект
от 710 000 ₽
Комплектация
Холодный контур
от 2 050 000 ₽
Комплектация
Теплый контур
от 2 870 000 ₽
Комплектация
Предчистовая
от 7 000 000 ₽
Комплектация

Желаете внести изменения в проект?
Мы сделаем это бесплатно!

Заказать консультацию

Что входит в комплектации

  • Стенокомплект
  • Холодный контур
  • Теплый контур
  • Предчистовая
Комплектация "СТЕНОКОМПЛЕКТ" Сечение бруса 160*185 мм
от 18 450 руб. за м2
Сечение бруса 200*185 мм
от 23 100 руб. за м2

Стенокомплект изделий из клееного бруса:

  • Изготовление профилированного клееного бруса выбранного сечения (влажность 8-12%, клеевая система Akzo Nobel (Швеция))
  • Нарезка чаш согласно проекту
  • Доработка проемов (устройство пазов) под монтаж обсадных коробок
  • Погрузка
  • Комплект документации для сборки (КД)
+ +

Дополнительно:

  • Сверловка каналов под скрытую электропроводку согласно проекту
  • Обработка торцов бруса от растрескивания защитным составом.
  • Упаковка в пленку
  • Доставка до строительной площадки
  • Разгрузка
- -
Итог: от 710 000 ₽
Заказать
от 890 000 ₽
Заказать
Комплектация "ХОЛОДНЫЙ КОНТУР" Сечение бруса 160*185 мм
от 32 500 руб. за м2
Сечение бруса 200*185 мм
от 35 100 руб. за м2

Фундамент - ж/б сваи 150*150*3000 мм с установкой металлических оголовков.

+ +

Стенокомплект:

  • Изготовление профилированного клееного бруса выбранного сечения (влажность 8-12%, клеевая система Akzo Nobel (Швеция))
  • Нарезка чаш согласно проекту
  • Доработка проемов (устройство пазов) под монтаж обсадных коробок
  • Сверловка под скрытую электропроводку согласно проекту (опционально)
  • Обработка торцов бруса от растрескивания.
  • Обвязочный брус
  • Крепежные элементы, уплотнительные материалы, шканты, узлы силы, метизы
   

Кровля:

  • Стропильная система из доски камерной сушки (сосна) 50х200мм, обрешетка из бруска 50х50мм, контробрешетка и внутренняя обрешеткам из доски 25х100мм.
  • Гидроветрозащитная мембрана, пароизоляция
  • Минераловатный утеплитель
  • Металлочерепица Монтеррей, 0,5 мм
  • Крепежные элементы, комплектующие.
   

Перекрытие (цокольное, межэтажное, чердачное):

  • Лаги, балки перекрытий, подстропильные балки - Брус (сосна), обработанный огнебиозащитным составом
- -
Итог: от 2 050 000 ₽
Заказать
от 2 225 000 ₽
Заказать
Комплектация "ТЕПЛЫЙ КОНТУР" Сечение бруса 160*185 мм
от 55 000 руб. за м2
Сечение бруса 200*185 мм
от 58 800 руб. за м2

Фундамент - ж/б сваи 150*150*3000 мм с установкой металлических оголовков.

+ +

Стенокомплект:

  • Изготовление профилированного клееного бруса выбранного сечения (влажность 8-12%, клеевая система Akzo Nobel (Швеция))
  • Нарезка чаш согласно проекту
  • Доработка проемов (устройство пазов) под монтаж обсадных коробок
  • Сверловка под скрытую электропроводку согласно проекту (опционально)
  • Обработка торцов бруса от растрескивания.
  • Обвязочный брус
  • Крепежные элементы, уплотнительные материалы, шканты, узлы силы, метизы
   

Окна и двери:

  • Обсадные коробки (Т-образная, под монтаж оконных и дверных конструкций, без подоконника и порога)
  • Оконные пластиковые конструкции (5-камерный ПВХ профиль белого цвета, 70мм, стеклопакет двухкамерный с энергосберегающим напылением)
  • Входная дверь с терморазрывом
   

Кровля:

  • Стропильная система из доски камерной сушки (сосна) 50х200мм, обрешетка из бруска 50х50мм, контробрешетка и внутренняя обрешеткам из доски 25х100мм.
  • Гидроветрозащитная мембрана, пароизоляция
  • Минераловатный утеплитель
  • Металлочерепица Монтеррей, 0,5 мм
  • Установка проходных вентиляционных элементов согласно проекту
  • Установка снегозадерживателей (опционально)
  • Крепежные элементы, комплектующие.
- -

Перекрытие (цокольное, межэтажное, чердачное):

  • Лаги, балки - Брус (сосна), обработанный огнебиозащитным составом
  • Гидроветрозащитная мембрана, пароизоляция
  • Минераловатный утеплитель
  • Обрешетка, доска 25х100 мм
  • Черновой пол (двойной слой фанеры 10мм, мокрые зоны – укладка ЦСП)
  • Монтажные и уплотнительные элементы
   

Внутренние стены:

  • Устройство деревянного каркаса внутренних стен
   
Итог: от 2 870 000 ₽
Заказать
от 3 050 000 ₽
Заказать
Комплектация "ПРЕДЧИСТОВАЯ" Сечение бруса 160*185 мм
от 89 800 руб. за м2
Сечение бруса 200*185 мм
от 93 500 руб. за м2

Фундамент - ж/б сваи 150*150*3000 мм с установкой металлических оголовков.

+ +

Стенокомплект:

  • Изготовление профилированного клееного бруса выбранного сечения (влажность 8-12%, клеевая система Akzo Nobel (Швеция))
  • Нарезка чаш согласно проекту
  • Доработка проемов (устройство пазов) под монтаж обсадных коробок
  • Сверловка под скрытую электропроводку согласно проекту (опционально)
  • Обработка торцов бруса от растрескивания.
  • Обвязочный брус
  • Крепежные элементы, уплотнительные материалы, шканты, узлы силы, метизы
   

Окна и двери:

  • Обсадные коробки (Т-образная, под монтаж оконных и дверных конструкций, без подоконника и порога)
  • Оконные пластиковые конструкции (5-камерный ПВХ профиль белого цвета, 70мм, стеклопакет двухкамерный с энергосберегающим напылением)
  • Установка подоконника (мебельный щит из срощенной доски или ПВХ)
  • Входная дверь с терморазрывом
  • Монтаж обналички
   

Кровля:

  • Стропильная система из доски камерной сушки (сосна) 50х200мм, обрешетка из бруска 50х50мм, контробрешетка и внутренняя обрешеткам из доски 25х100мм.
  • Гидроветрозащитная мембрана, пароизоляция
  • Минераловатный утеплитель
  • Металлочерепица Монтеррей, 0,5 мм
  • Установка проходных вентиляционных элементов согласно проекту
  • Установка снегозадерживателей (опционально)
  • Монтаж водосточной системы
  • Пошивка карнизов и навесов террас и крылец
  • Крепежные элементы, комплектующие.
- -

Перекрытие (цокольное, межэтажное, чердачное):

  • Лаги, балки - Брус (сосна), обработанный огнебиозащитным составом
  • Гидроветрозащитная мембрана, пароизоляция
  • Минераловатный утеплитель
  • Обрешетка, доска 25х100 мм
  • Черновой пол (двойной слой фанеры 10мм, мокрые зоны – укладка ЦСП)
  • Монтажные и уплотнительные элементы
   

Терраса (веранда, крыльцо):

  • Отделка пола террасной доской из лиственницы или сосны
  • Монтаж поручней из доски камерной сушки (сосна)
  • Лестница внешняя на веранду (металлический каркас, доска)
   

Покраска стен

  • Шлифовка внешних и внутренних стен на два прохода, пылеудаление
  • Шлифовка торцов
  • Покраска внутренних и внешних стен дома маслом или краской BIOFA 
   

Наружные инженерные сети:

  • Канализациионный септик, включая трассу до 10м
  • Скважина глубиной до 20м (установка кессона, адаптера, насоса, герметизация скважины оголовком, прокладка труб водоснабжения с утеплением, пусконаладочные работы)
  • Подключение к внешним электросетям (до 20м от точки подключения до ввода в дом)
  • Подключение газа (опционально)
   

Внутренние инженерные сети:

  • Черновые электромонтажные работы (рапределительный щит, разводка, установка розеток и выключателей)
  • Монтаж системы водоснабжения и водоотведения
  • Монтаж бойлера ГВС
  • Монтаж и обвязка котла отопления (опционально)
  • Монтаж системы отопления (установка электрических конвекторов с терморегуляторами)
  • Монтаж теплого пола (опционально)
   

Вентиляция:

  • Проходные кровельные элементы
  • Стеновые рекуператоры (опционально)
   
Итог: от 7 000 000 ₽
Заказать
от 7 350 000 ₽
Заказать

Как выглядят комплектации

Стенокомплект
Холодный контур
Теплый контур
Предчистовая