Проект Нейва

О проекте
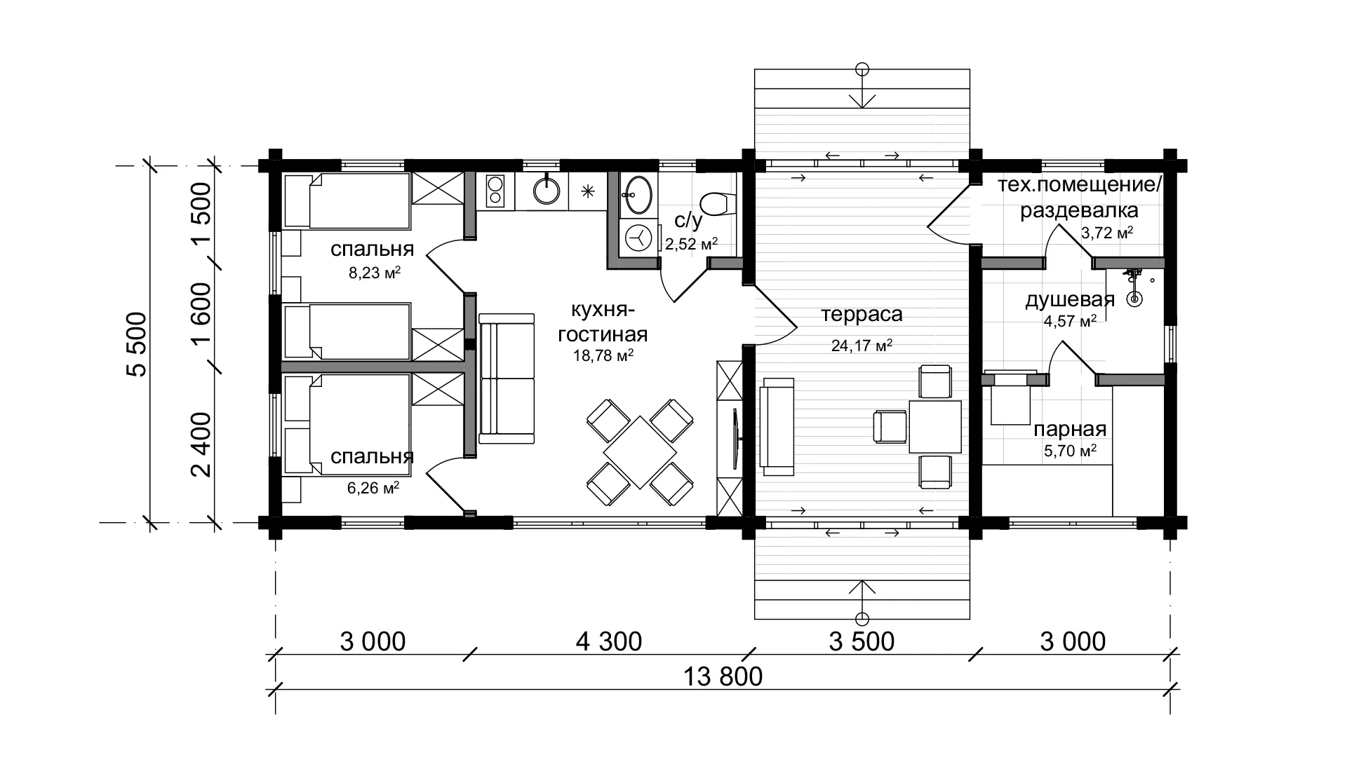
Габариты дома (м)
7х14 м
Площадь дома (м²)
75 м²
Количество этажей
1
Количество спален
2
Количество санузлов
1
Комплектации и Стоимость
Стенокомплект
от 1 454 000 ₽
Комплектация
Холодный контур
от 4 365 000 ₽
Комплектация
Теплый контур
от 5 125 000 ₽
Комплектация
Предчистовая
от 6 625 000 ₽
Комплектация

Варианты планировок

Этот компактный и продуманный дом из клеёного бруса создан для комфортной загородной жизни в любое время года. Архитектура проекта сочетает лаконичный современный облик и тёплую эстетику натурального дерева. Панорамные окна наполняют дом светом и визуально объединяют интерьер с природой, а аккуратная терраса становится логичным продолжением жилого пространства — идеальное место для завтраков на свежем воздухе и вечернего отдыха.

Планировка максимально функциональна: две уютные спальни, просторная кухня-гостиная, санузел и выход на террасу формируют удобное пространство для семьи или гостей. Отдельный банный блок с парной, душевой и раздевалкой — большое преимущество проекта, позволяющее наслаждаться полноценным отдыхом без выхода из дома. Все помещения спроектированы без лишних метров, с акцентом на комфорт и практичность.

Проект отлично подойдёт для дачи, дома выходного дня или арендного формата под глэмпинг и туризм. Дом из клеёного бруса отличается высокой энергоэффективностью, стабильной геометрией и долговечностью, а заводская подготовка элементов сокращает сроки строительства и даёт прогнозируемый результат. Это готовое решение для тех, кто ценит качество, уют и разумный подход к строительству.

Желаете внести изменения в проект?
Мы сделаем это бесплатно!

Заказать консультацию

Что входит в комплектации

  • Стенокомплект
  • Холодный контур
  • Теплый контур
  • Предчистовая
Комплектация СТЕНОКОМПЛЕКТ Сечение бруса 160 х 185 мм
от 13 900 руб. за м2
Сечение бруса 200х185 мм
от 17 400 руб. за м2

Стенокомплект изделий из клееного бруса:

  • Изготовление профилированного клееного бруса выбранного сечения (влажность 8-12%, клеевая система Akzo Nobel (Швеция))
  • Нарезка чаш согласно проекту
  • Доработка проемов (устройство пазов) под монтаж обсадных коробок
  • Погрузка
  • Комплект документации для сборки (КД)
+ +

Дополнительно:

  • Сверловка каналов под скрытую электропроводку согласно проекту
  • Обработка торцов бруса от растрескивания защитным составом.
  • Упаковка в пленку
  • Доставка до строительной площадки
  • Разгрузка
+ +
Итог: от 1 454 000 ₽
Заказать
от 1 567 000 ₽
Заказать
Комплектация ХОЛОДНЫЙ КОНТУР Сечение бруса 160 х 185 мм
от 33 924 руб. за м2
Сечение бруса 200х185 мм
от 37 025 руб. за м2

Фундамент - ж/б сваи 150*150*3000 мм с установкой металлических оголовков.

+ +

Стенокомплект:

  • Изготовление профилированного клееного бруса выбранного сечения (влажность 8-12%, клеевая система Akzo Nobel, Швеция)
  • Нарезка чаш согласно проекту.
  • Доработка проемов (устройство пазов) под монтаж обсадных коробок.
  • Сверловка под скрытую электропроводку согласно проекту (опционально)
  • Обработка торцов бруса от растрескивания.
  • Обвязочный брус.
  • Крепежные элементы, уплотнительные материалы, шканты, узлы силы, метизы.
+ +

Кровля:

  • Стропильная система из доски камерной сушки (сосна) 50х200мм, обрешетка из бруска 50х50мм, контробрешетка и внутренняя обрешеткам из доски 25х100мм.
  • Гидроветрозащитная мембрана, пароизоляция
  • Минераловатный утеплитель
  • Металлочерепица Монтеррей, 0,5 мм
  • Крепежные элементы, комплектующие.
+ +

Перекрытие (цокольное, межэтажное, чердачное):

  • Лаги, балки перекрытий, подстропильные балки - Брус (сосна), обработанный огнебиозащитным составом
+ +
Итог: от 4 365 000 ₽
Заказать
от 3 431 000 ₽
Заказать
Комплектация ТЕПЛЫЙ КОНТУР Сечение бруса 160 х 185 мм
от 61 780 руб. за м2
Сечение бруса 200х185 мм
от 64 890 руб. за м2

Фундамент - ж/б сваи 150*150*3000 мм с установкой металлических оголовков.

+ +

Стенокомплект:

  • Изготовление профилированного клееного бруса выбранного сечения (влажность 8-12%, клеевая система Akzo Nobel (Швеция))
  • Нарезка чаш согласно проекту
  • Доработка проемов (устройство пазов) под монтаж обсадных коробок
  • Сверловка под скрытую электропроводку согласно проекту (опционально)
  • Обработка торцов бруса от растрескивания.
  • Обвязочный брус
  • Крепежные элементы, уплотнительные материалы, шканты, узлы силы, метизы
+ +

Окна и двери:

  • Обсадные коробки (Т-образная, под монтаж оконных и дверных конструкций, без подоконника и порога)
  • Оконные пластиковые конструкции (5-камерный ПВХ профиль белого цвета, 70мм, стеклопакет двухкамерный с энергосберегающим напылением)
  • Установка подоконника (мебельный щит из срощенной доски или ПВХ)
  • Входная дверь с терморазрывом
  • Монтаж обналички
+ +

Кровля:

  • Стропильная система из доски камерной сушки (сосна) 50х200мм, обрешетка из бруска 50х50мм, контробрешетка и внутренняя обрешеткам из доски 25х100мм.
  • Гидроветрозащитная мембрана, пароизоляция
  • Минераловатный утеплитель
  • Металлочерепица Монтеррей, 0,5 мм
  • Установка проходных вентиляционных элементов согласно проекту
  • Установка снегозадерживателей (опционально)
  • Монтаж водосточной системы
  • Пошивка карнизов и навесов террас и крылец
  • Крепежные элементы, комплектующие.
+ +

Перекрытие (цокольное, межэтажное, чердачное):

  • Лаги, балки - Брус (сосна), обработанный огнебиозащитным составом
  • Гидроветрозащитная мембрана, пароизоляция
  • Минераловатный утеплитель
  • Обрешетка, доска 25х100 мм
  • Черновой пол (двойной слой фанеры 10мм, мокрые зоны – укладка ЦСП)
  • Монтажные и уплотнительные элементы
+ +

Внутренние стены:

  • Устройство деревянного каркаса внутренних стен
+ +
Итог: от 5 125 000 ₽
Заказать
от 4 678 000 ₽
Заказать
Комплектация ПРЕДЧИСТОВАЯ Сечение бруса 160 х 185 мм
от 84 500 руб. за м2
Сечение бруса 200х185 мм
от 87 600 руб. за м2

Фундамент - ж/б сваи 150*150*3000 мм с установкой металлических оголовков.

+ +

Стенокомплект:

  • Изготовление профилированного клееного бруса выбранного сечения (влажность 8-12%, клеевая система Akzo Nobel (Швеция))
  • Нарезка чаш согласно проекту
  • Доработка проемов (устройство пазов) под монтаж обсадных коробок
  • Сверловка под скрытую электропроводку согласно проекту (опционально)
  • Обработка торцов бруса от растрескивания.
  • Обвязочный брус
  • Крепежные элементы, уплотнительные материалы, шканты, узлы силы, метизы
+ +

Окна и двери:

  • Обсадные коробки (Т-образная, под монтаж оконных и дверных конструкций, без подоконника и порога)
  • Оконные пластиковые конструкции (5-камерный ПВХ профиль белого цвета, 70мм, стеклопакет двухкамерный с энергосберегающим напылением)
  • Установка подоконника (мебельный щит из срощенной доски или ПВХ)
  • Входная дверь с терморазрывом
  • Монтаж обналички
+ +

Кровля:

  • Стропильная система из доски камерной сушки (сосна) 50х200мм, обрешетка из бруска 50х50мм, контробрешетка и внутренняя обрешеткам из доски 25х100мм.
  • Гидроветрозащитная мембрана, пароизоляция
  • Минераловатный утеплитель
  • Металлочерепица Монтеррей, 0,5 мм
  • Установка проходных вентиляционных элементов согласно проекту
  • Установка снегозадерживателей (опционально)
  • Монтаж водосточной системы
  • Пошивка карнизов и навесов террас и крылец
  • Крепежные элементы, комплектующие.
+ +

Перекрытие (цокольное, межэтажное, чердачное):

  • Лаги, балки - Брус (сосна), обработанный огнебиозащитным составом
  • Гидроветрозащитная мембрана, пароизоляция
  • Минераловатный утеплитель
  • Обрешетка, доска 25х100 мм
  • Черновой пол (двойной слой фанеры 10мм, мокрые зоны – укладка ЦСП)
  • Монтажные и уплотнительные элементы
+ +

Терраса (веранда, крыльцо):

  • Отделка пола террасной доской из лиственницы или сосны
  • Монтаж поручней из доски камерной сушки (сосна)
  • Лестница внешняя на веранду (металлический каркас, доска)
+ +

Покраска стен

  • Шлифовка внешних и внутренних стен на два прохода, пылеудаление
  • Шлифовка торцов
  • Покраска внутренних и внешних стен дома маслом или краской BIOFA 
+ +

Наружные инженерные сети:

  • Канализациионный септик, включая трассу до 10м
  • Скважина глубиной до 20м (установка кессона, адаптера, насоса, герметизация скважины оголовком, прокладка труб водоснабжения с утеплением, пусконаладочные работы)
  • Подключение к внешним электросетям (до 20м от точки подключения до ввода в дом)
  • Подключение газа (опционально)
+ +

Внутренние инженерные сети:

  • Черновые электромонтажные работы (рапределительный щит, разводка, установка розеток и выключателей)
  • Монтаж системы водоснабжения и водоотведения
  • Монтаж бойлера ГВС
  • Монтаж и обвязка котла отопления (опционально)
  • Монтаж системы отопления (установка электрических конвекторов с терморегуляторами)
  • Монтаж теплого пола (опционально)
+ +

Вентиляция:

  • Проходные кровельные элементы
  • Стеновые рекуператоры (опционально)
+ +
Итог: от 6 625 000 ₽
Заказать
от 6 361 000 ₽
Заказать

Как выглядят комплектации

Стенокомплект
Холодный контур
Теплый контур
Предчистовая