Дом "Курьинский"

О проекте
Габариты дома (м)
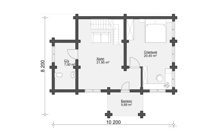
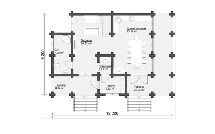
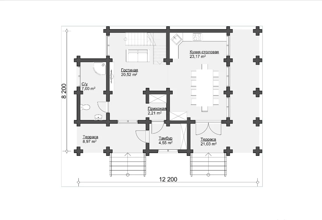
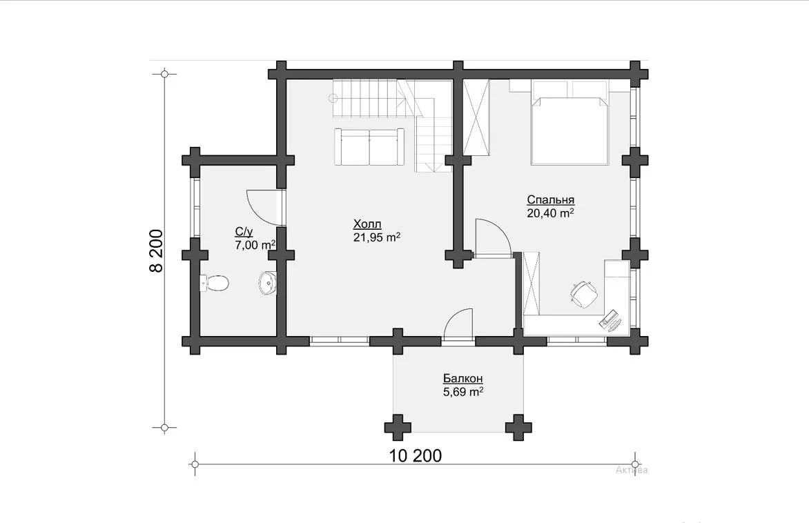
9х13 м
Площадь дома (м²)
143 м²
Количество этажей
2
Количество спален
1
Количество санузлов
2
Комплектации и Стоимость
Стенокомплект
Цена по запросу
Комплектация
Холодный контур
Цена по запросу
Комплектация
Теплый контур
Цена по запросу
Комплектация
Предчистовая
Цена по запросу
Комплектация

Варианты планировок

Желаете внести изменения в проект?
Мы сделаем это бесплатно!

Заказать консультацию

Что входит в комплектации

  • Стенокомплект
  • Холодный контур
  • Теплый контур
  • Предчистовая
Комплектация "СТЕНОКОМПЛЕКТ" Сечение бревна d=200 мм

Стенокомплект изделий из оцилиндрованного бревна:

  • Изготовление оцилиндрованного бревна выбранного сечения.
  • Нарезка чаш согласно проекту
  • Доработка проемов (устройство пазов) под монтаж обсадных коробок
  • Погрузка
  • Комплект документации для сборки (КД)
+

Дополнительно:

  • Сверловка каналов под скрытую электропроводку согласно проекту
  • Обработка торцов бруса от растрескивания защитным составом
  • Доставка до строительной площадки
  • Разгрузка
-
Итог: Цена по запросу
Заказать
Комплектация "ХОЛОДНЫЙ КОНТУР" Сечение бревна d=220 мм

Фундамент - ж/б сваи 150*150*3000 мм с установкой металлических оголовков.

+

Стенокомплект:

  • Изготовление оцилиндрованного бревна выбранного сечения.
  • Нарезка чаш согласно проекту
  • Доработка проемов (устройство пазов) под монтаж обсадных коробок
  • Сверловка под скрытую электропроводку согласно проекту (опционально)
  • Обработка торцов бревна от растрескивания.
  • Обвязочный брус
  • Крепежные элементы, уплотнительные материалы, шканты, узлы силы, метизы
+

Кровля:

  • Стропильная система из доски камерной сушки (сосна) 50х200мм, обрешетка из бруска 50х50мм, контробрешетка и внутренняя обрешеткам из доски 25х100мм.
  • Гидроветрозащитная мембрана, пароизоляция
  • Минераловатный утеплитель
  • Металлочерепица Монтеррей, 0,5 мм
  • Крепежные элементы, комплектующие.
+

Перекрытие (цокольное, межэтажное, чердачное):

  • Лаги, балки перекрытий, подстропильные балки - брус (сосна), обработанный огнебиозащитным составом
+
Итог: Цена по запросу
Заказать
Комплектация "ТЕПЛЫЙ КОНТУР" Сечение бревна d=220 мм

Фундамент - ж/б сваи 150*150*3000 мм с установкой металлических оголовков.

+

Стенокомплект:

  • Изготовление оцилиндрованного бревна выбранного сечения.
  • Нарезка чаш согласно проекту
  • Доработка проемов (устройство пазов) под монтаж обсадных коробок
  • Сверловка под скрытую электропроводку согласно проекту (опционально)
  • Обработка торцов бревна от растрескивания.
  • Обвязочный брус или подкладочная доска
  • Крепежные элементы, уплотнительные материалы, шканты, узлы силы, метизы
+

Окна и двери:

  • Обсадные коробки (Т-образная, под монтаж оконных и дверных конструкций, без подоконника и порога)
  • Оконные пластиковые конструкции (5-камерный ПВХ профиль белого цвета, 70мм, стеклопакет двухкамерный с энергосберегающим напылением)
  • Входная дверь с терморазрывом
+

Кровля:

  • Стропильная система из доски камерной сушки (сосна) 50х200мм, обрешетка из бруска 50х50мм, контробрешетка и внутренняя обрешеткам из доски 25х100мм.
  • Гидроветрозащитная мембрана, пароизоляция
  • Минераловатный утеплитель
  • Металлочерепица Монтеррей, 0,5 мм
  • Установка проходных вентиляционных элементов согласно проекту
  • Установка снегозадерживателей (опционально)
  • Крепежные элементы, комплектующие.
+

Перекрытие (цокольное, межэтажное, чердачное):

  • Лаги, балки - Брус (сосна), обработанный огнебиозащитным составом
  • Гидроветрозащитная мембрана, пароизоляция
  • Минераловатный утеплитель
  • Обрешетка, доска 25х100 мм
  • Черновой пол (двойной слой фанеры 10мм, мокрые зоны – укладка ЦСП)
  • Монтажные и уплотнительные элементы
+

Внутренние стены:

  • Устройство деревянного каркаса внутренних стен
+
Итог: Цена по запросу
Заказать
Комплектация "ПРЕДЧИСТОВАЯ" Сечение бревна d=220 мм

Фундамент - ж/б сваи 150*150*3000 мм с установкой металлических оголовков.

+

Стенокомплект:

  • Изготовление стенокомплекта из оцилиндрованного бревна выбранного сечения
  • Нарезка чаш согласно проекту
  • Доработка проемов (устройство пазов) под монтаж обсадных коробок
  • Сверловка под скрытую электропроводку согласно проекту (опционально)
  • Обработка торцов бревна от растрескивания.
  • Обвязочный брус или подкладочная доска.
  • Крепежные элементы, уплотнительные материалы, шканты, узлы силы, метизы
+

Окна и двери:

  • Обсадные коробки (Т-образная, под монтаж оконных и дверных конструкций, без подоконника и порога)
  • Оконные пластиковые конструкции (5-камерный ПВХ профиль белого цвета, 70мм, стеклопакет двухкамерный с энергосберегающим напылением)
  • Установка подоконника (мебельный щит из срощенной доски или ПВХ)
  • Входная дверь с терморазрывом
  • Монтаж обналички
+

Кровля:

  • Стропильная система из доски камерной сушки (сосна) 50х200мм, обрешетка из бруска 50х50мм, контробрешетка и внутренняя обрешеткам из доски 25х100мм.
  • Гидроветрозащитная мембрана, пароизоляция
  • Минераловатный утеплитель
  • Металлочерепица Монтеррей, 0,5 мм
  • Установка проходных вентиляционных элементов согласно проекту
  • Установка снегозадерживателей (опционально)
  • Монтаж водосточной системы
  • Пошивка карнизов и навесов террас и крылец
  • Крепежные элементы, комплектующие.
+

Перекрытие (цокольное, межэтажное, чердачное):

  • Лаги, балки - Брус (сосна), обработанный огнебиозащитным составом
  • Гидроветрозащитная мембрана, пароизоляция
  • Минераловатный утеплитель
  • Обрешетка, доска 25х100 мм
  • Черновой пол (двойной слой фанеры 10мм, мокрые зоны – укладка ЦСП)
  • Монтажные и уплотнительные элементы
+

Терраса (веранда, крыльцо):

  • Отделка пола террасной доской из лиственницы или сосны
  • Монтаж поручней из доски камерной сушки (сосна)
  • Лестница внешняя на веранду (металлический каркас, доска)
+

Покраска стен

  • Шлифовка внешних и внутренних стен на два прохода, пылеудаление
  • Шлифовка торцов
  • Покраска внутренних и внешних стен дома маслом или краской BIOFA 
+

Наружные инженерные сети:

  • Канализациионный септик, включая трассу до 10м
  • Скважина глубиной до 20м (установка кессона, адаптера, насоса, герметизация скважины оголовком, прокладка труб водоснабжения с утеплением, пусконаладочные работы)
  • Подключение к внешним электросетям (до 20м от точки подключения до ввода в дом)
  • Подключение газа (опционально)
+

Внутренние инженерные сети:

  • Черновые электромонтажные работы (рапределительный щит, разводка, установка розеток и выключателей)
  • Монтаж системы водоснабжения и водоотведения
  • Монтаж бойлера ГВС
  • Монтаж и обвязка котла отопления (опционально)
  • Монтаж системы отопления (установка электрических конвекторов с терморегуляторами)
  • Монтаж теплого пола (опционально)
+

Вентиляция:

  • Проходные кровельные элементы
  • Стеновые рекуператоры (опционально)
+
Итог: Цена по запросу
Заказать
Стенокомплект
Холодный контур
Теплый контур
Предчистовая